Contact Info
City Hall
60 South Main Street
P.O. Box 48
Driggs, Idaho 83422
Hours: Monday-Thursday 8:00 a.m. - 5:00 p.m.
Closed Fridays and Federal Holidays
Phone: (208) 354-2362
General Email: info@driggsidaho.org
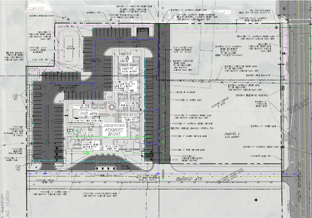
SD26-1 Site Development
300 Main - Public Improvements

SUMMARY: The proposal for site development of the 300 Main property includes the public improvements – water/sewer/utilities within Harrop Avenue, a newly proposed street.  A separate site development application (SD26-3) was submitted to review the hotel site in full. The proposed work in SD26-1 includes building Harrop Avenue, utilities, and street trees and is subject to the standards of the Driggs LDC for CX zone standards.
PROJECT HISTORY: In 2021 the entire hotel project went through a design review process. With no changes to the exterior of the building, it was determined that the project could resubmit to confirm site development conformance. The applicant requested to submit the project in two pieces to start construction of the public improvements as quickly as possible.
APPLICABLE CODES & ORDINANCES: Site Development Permits are governed by Art. 14.6 of the Land Development Code (LDC) and Appendix A of the LDC.
REVIEW PROCESS: For Site Plan Review the Administrator is the review authority except when, at the Administrator’s discretion, Site Plans for projects over 5,000 square feet or that disturb more than 5,000 square feet of ground are forwarded to the Planning and Zoning Commission for review during a public meeting in accordance with Article 14.3. This application is for Site Development of more than 5,000 square feet. The project is subject to the standards of the Driggs LDC for CX zone standards.
RELATED DOCUMENTS:
SD26-1 Application Materials
RELATED PROJECTS:
SD26-3 Element Hotel Site Development
This project page was last updated on March 11, 2026.